GE
EN
Request a call
Menu
Close
Home
About The Company
Homer Alpha
Blog & News
Offers
Contact
Go Back
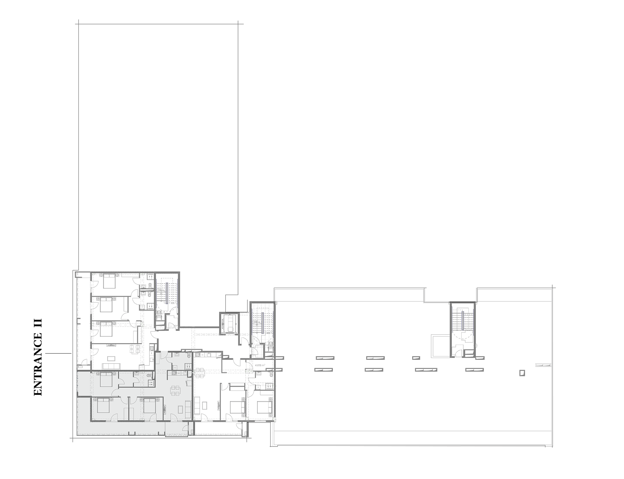
BLOCK IV, Floor 9
Available
Reserved
Sold
Apartment
Home 153
99 m²
Home 154
133.5 m²
Home 155
126.3 m²
Floor
10
9
8
7
6
5
4
3
2
1
Phone
+995 (032) 2 233 233
Sales Office
1, I. Javakhishvili sq. Tbilisi, 0102
Email
[email protected]
Leave us your contact
We will call you back
Phone
+995 (032) 2 233 233
Sales Office
1, I. Javakhishvili sq. Tbilisi, 0102
Email
[email protected]
Leave us your contact
Write to us
We will call you back
We will call you back
Be the first to receive information
about company special offers.
Thank You Your request is received
Request